Home
Über uns
Projekte
Wohnhaus F
Neubau einer Wohnanlage
Neubau eines Mehrfamilienhaus
Neubau Entwicklungszentrum
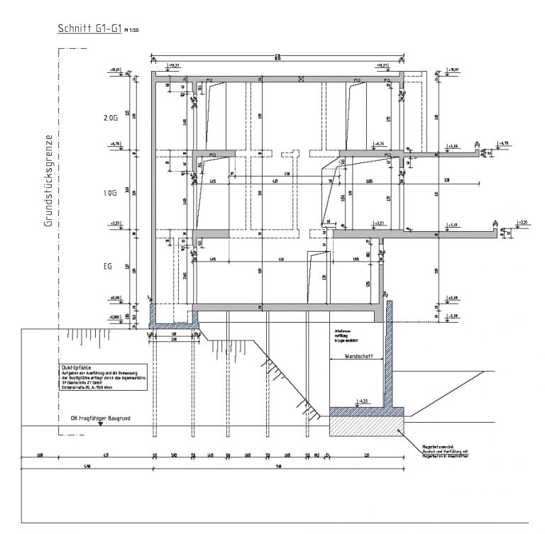
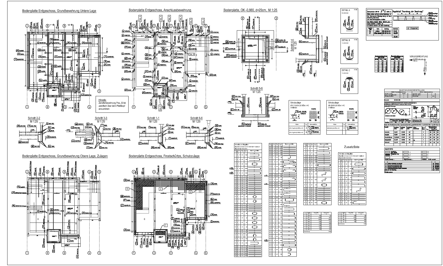
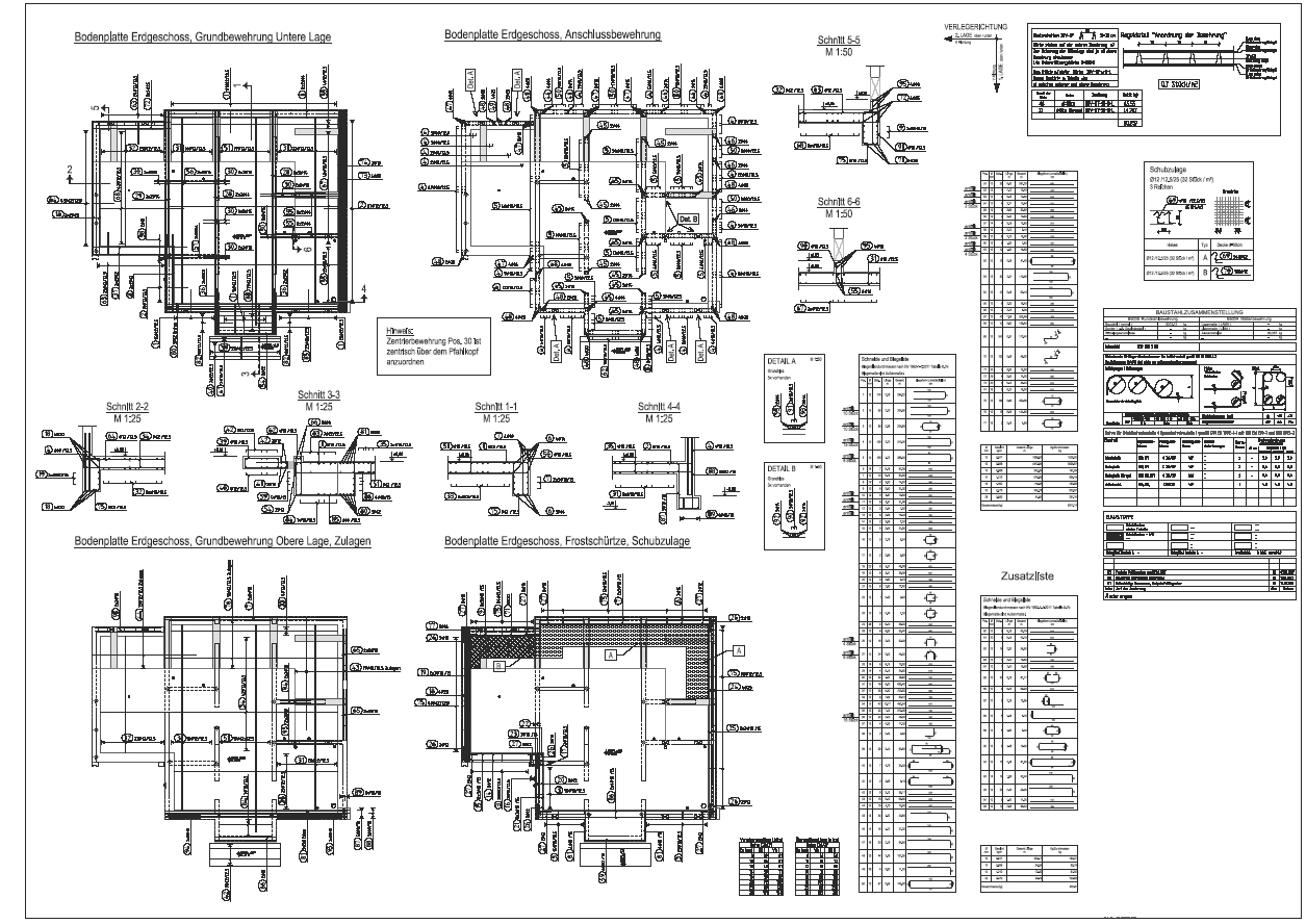
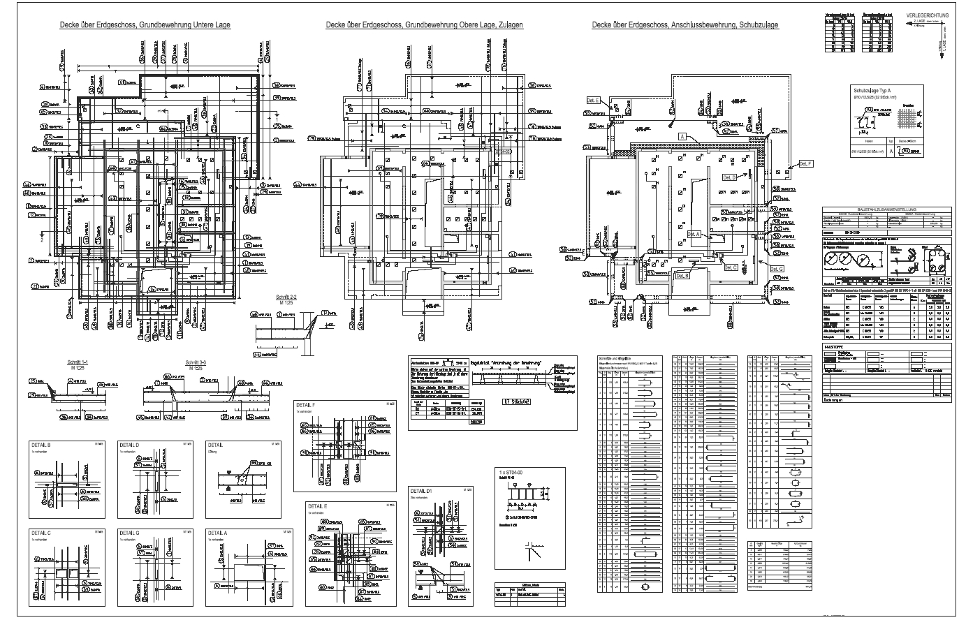
Errichtung einer Doppelhaushälfte
Neubau eines Hochschulgebäudes
Neubau eines Hotels
Neubau eines Mehrfamilienhaus mit 29 Wohneinheiten
Neubau eines Stadtquartiers mit Wohnungen
Neubau Mehrfamilienhaus D
Neubau Wohn- und Verwaltungsgebäude mit Tiefgarage
Neubau einer Hauptverwaltung mit einem Logistikzentrum
Wohnhaus H
Kontakt
Menu
Errichtung einer Doppelhaushälfte
Close Menu
Home
Über uns
Projekte
Kontakt