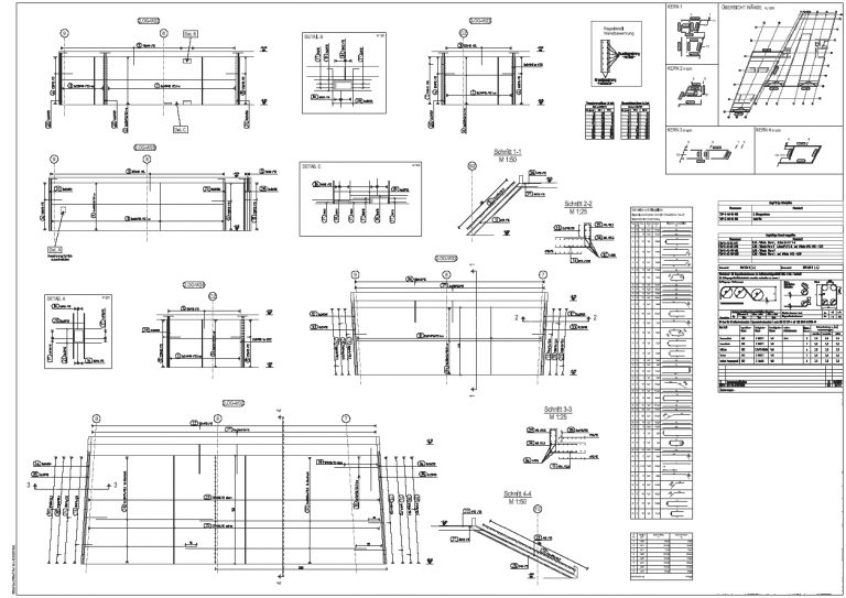
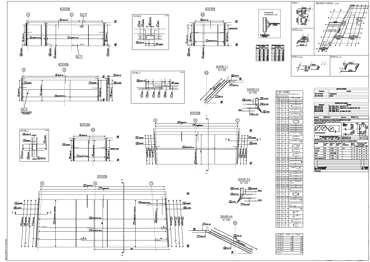
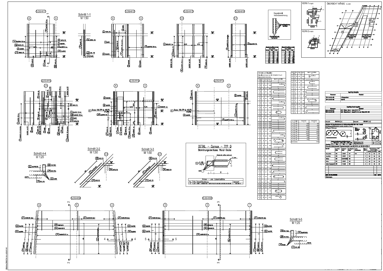
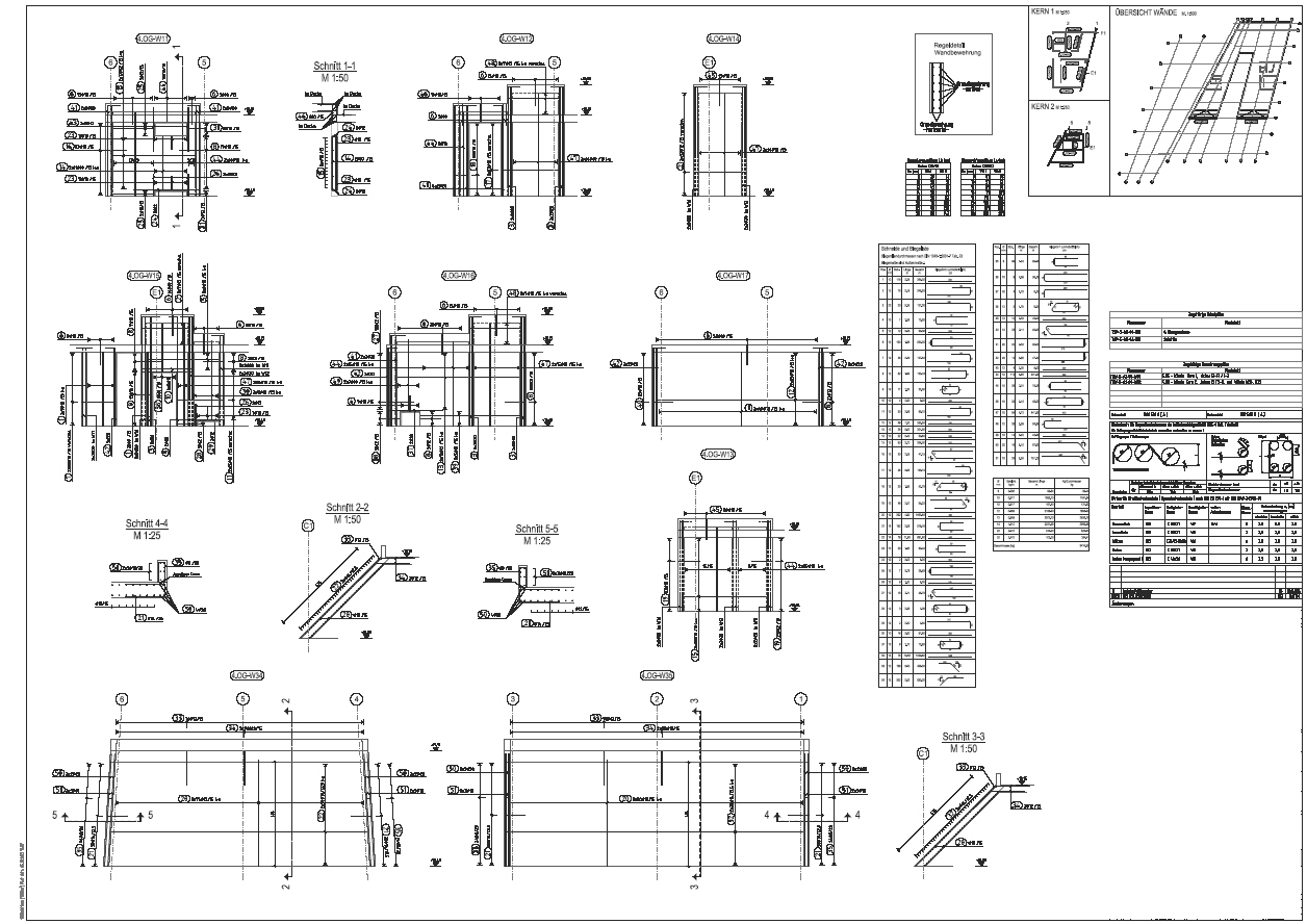
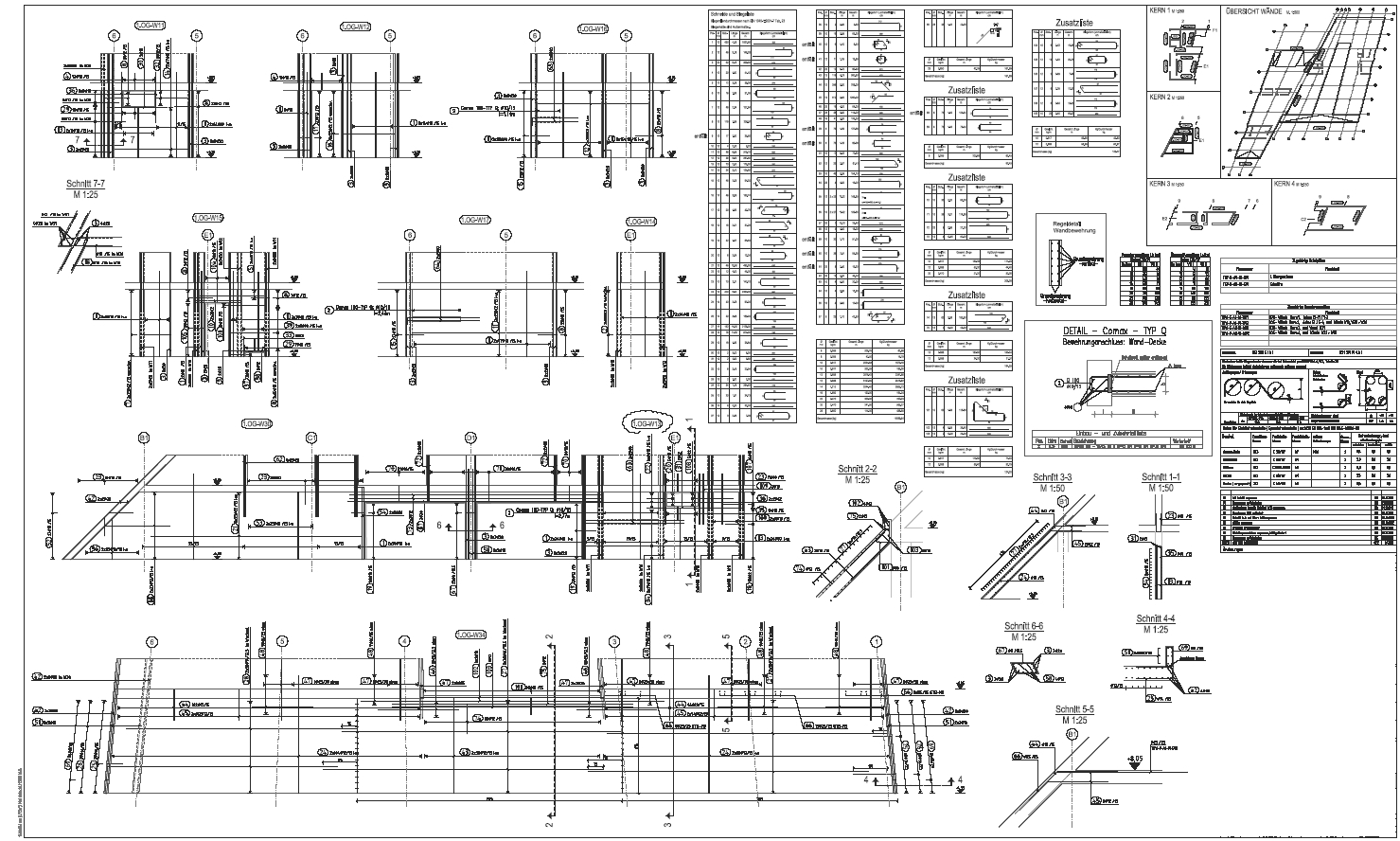
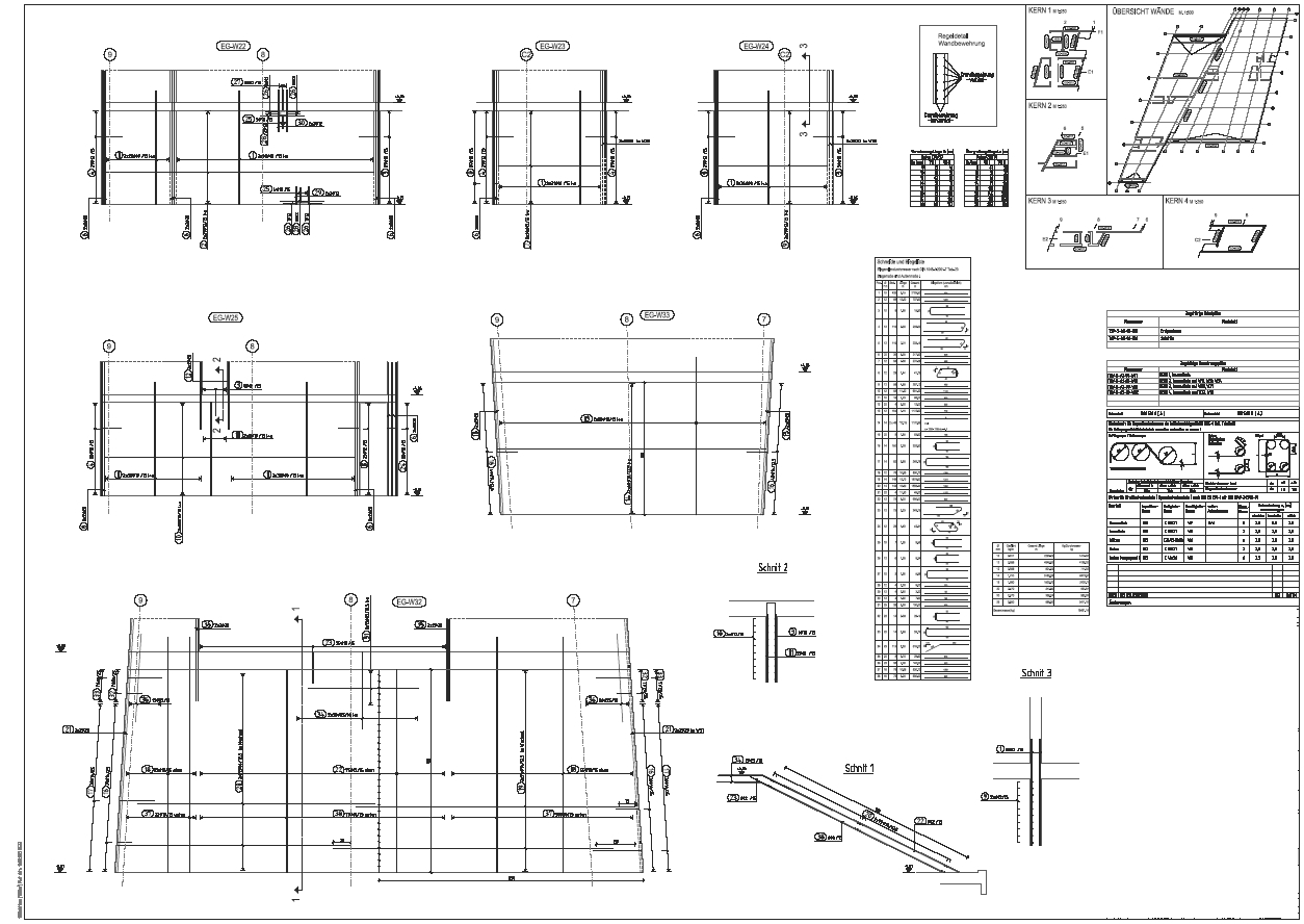
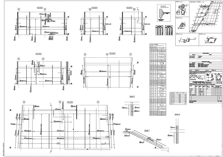
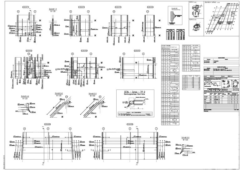
Neubau einer Hauptverwaltung mit einem Logistikzentrum

Close Menu