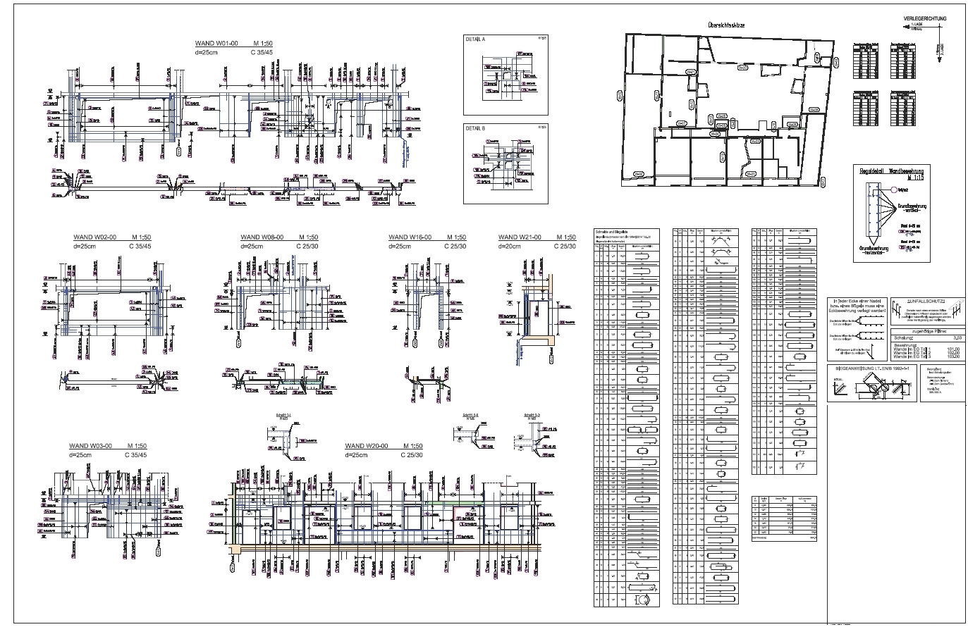
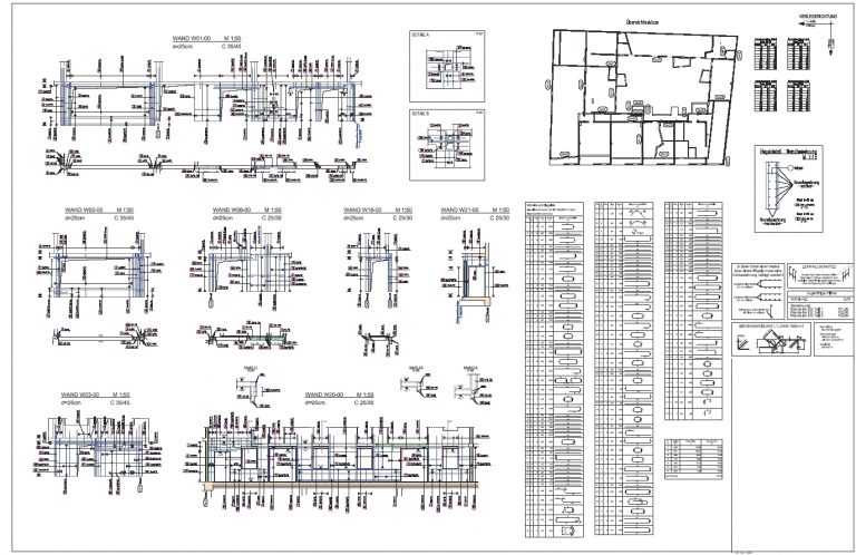
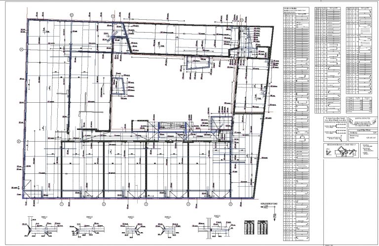
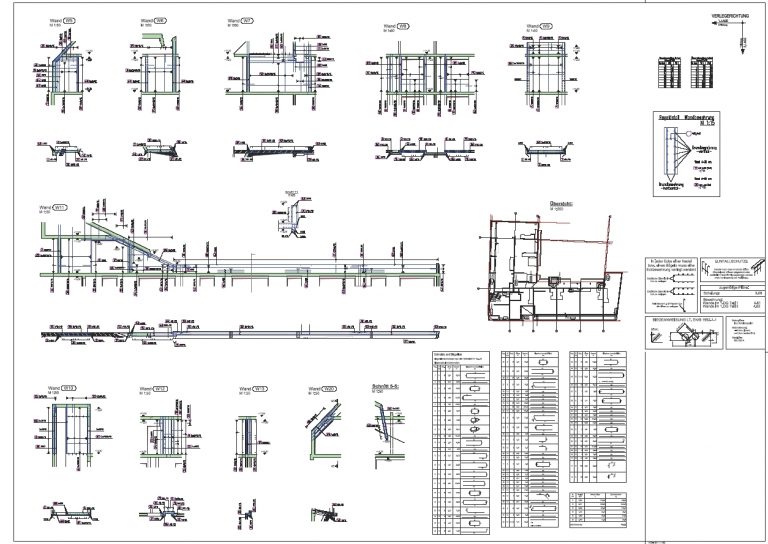
Neubau eines Mehrfamilienhaus

Close Menu